+36 (70) 948 4966

Részletes adatok

Ingatlanok száma: 0 db

Átadás ideje: 2026. szeptember

Leírás

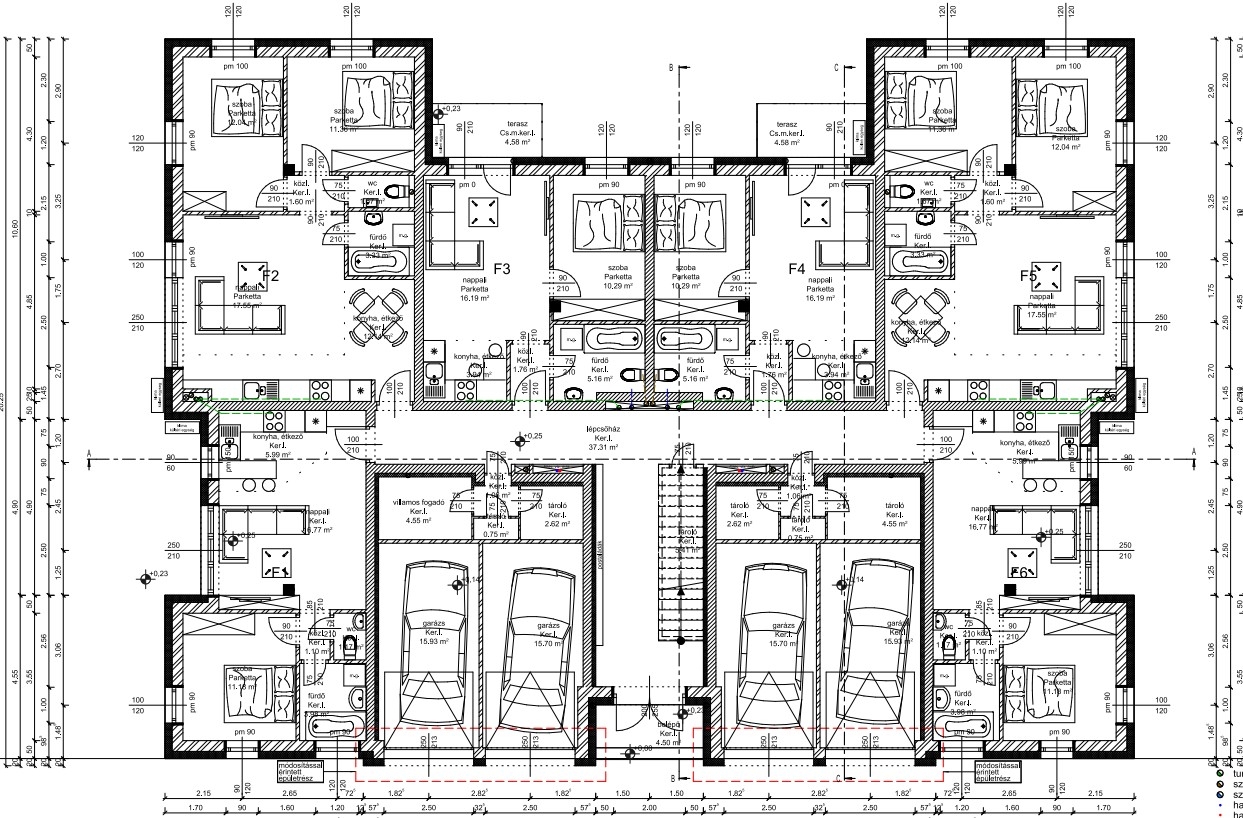
Hegyeshalomban újépítésű lakások emeltszintű fűtéskész állapotban eladók!

Az osztrák határ közelében megvételre kínálok társasházi lakásokat több méretben 3 szinten! Az ingatlanok tervezésénél nagy hangsúlyt fektettek a praktikus elrendezésre és a kivitelezésnél a legkorszerűbb anyagok kerülnek beépítésre. A kivitelező sokéves tapasztalattal és rengeteg referenciával rendelkezik. A lakások az energetikai előírásokat felülmúlva, még kedvezőbb energiahasználatúak lesznek (A+). A társasház tégla építésű, lapostetős PVC borítással, szigetelése az aljzattól a homlokzatig az előírásoknak megfelelően készül. Fűtéséről hőszivattyú gondoskodik, padlófűtés hőleadással, egyedi mérővel felszerelten. Nyílászárói műanyag szerkezetűek, 3 rétegű üvegezéssel, redőny előkészítéssel. Az árak emeltszintű szerkezetkész állapotra vonatkoznak. A lakások várható átadása 2026. 2. féléve. A kivitelező kulcsrakész befejezést is vállal felár ellenében! A vételár tartalmazza továbbá a közművek bekötési költségeit és a telekhányadot is! Garázs, parkoló és tároló felár ellenében vásárolható a lakásokhoz!

Lakások a földszinten:

F-5 jelű: 59.69 m2 (nappali-konyha-étkező, 2 hálószoba, közlekedő, fürdő, WC, saját kert 242.59 m2 à Ára: 58.000.000 Ft

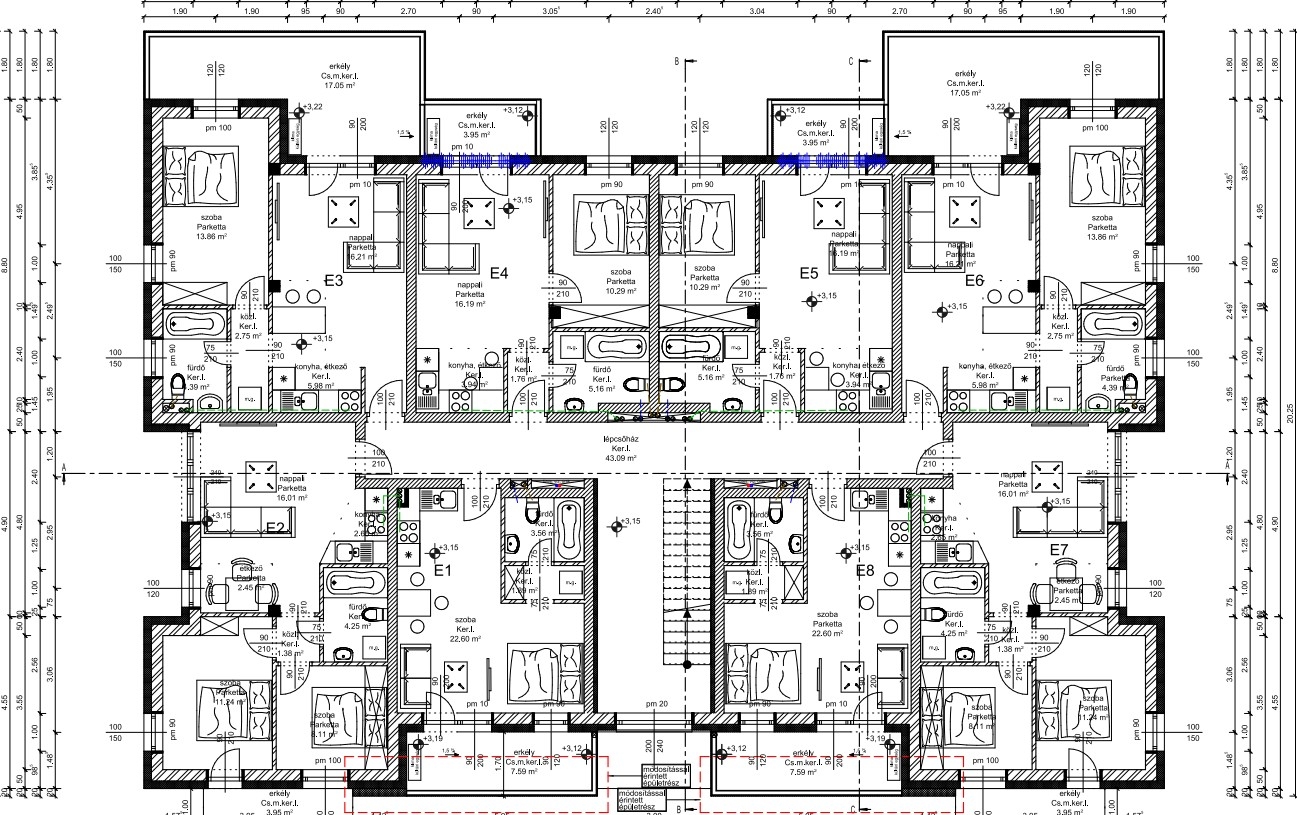
Lakások az első emelten:

E-1 jelű: 28.05 m2 (nappali-konyha-étkező, közlekedő, fürdő WC-vel, erkély 6.61 m2 à Ára: 31.000.000 Ft

Lakások a 2. emelten:

T-5 jelű: 38.57 m2 (nappali-konyha-étkező, hálószoba, közlekedő, fürdő WC-vel, dupla erkély – 14.86 m2 à Ára: 41.000.000 Ft

Parkoló: 1.500.000 Ft

Tárolók: 450.000-3.246.000 Ft

Garázs: 8.000.000 Ft

Amennyiben az eladó ingatlanok felkeltették az érdeklődését hívjon a megadott telefonszámon +36709484966 vagy írjon e-mailt a westsidecredit@gmail.com címre. Hitelügyintézésben is állunk szíves rendelkezésére!